Property
Account |
| Property ID: | 33411 | Abbreviated Legal Description: | T 25N R 20EWM S 23 S1/2NWNE 20.0000 ACRES |
| Geographic ID: | 252023120100 | Agent Code: | |
| Type: | Real | | |
| Tax Area: | 16 - 127 CD1 | Land Use Code | 91 |
| Open Space: | N | DFL | N |
| Historic Property: | N | Remodel Property: | N |
| Multi-Family Redevelopment: | N | | |
| Township: | 25N | Section: | 23 |
| Range: | 20EWM | Legal Acres: | 20.0000 |
Location |
| Address: | UNASSIGNED ENTIAT, WA 98822 | Mapsco: | |
| Neighborhood: | Cycle 2 Entiat Rural div 1 RES | Map ID: | 2ETR101R01 |
| Neighborhood CD: | 2ETR101R01 |
Owner |
| Name: | CALPITO JOHN ETAL | Owner ID: | 88346 |
| Mailing Address: | CALPITO JOE & KATRINA C 1921 126TH AVE CT EDGEWOOD, WA 98372 | % Ownership: | % |
| | | Exemptions: | |
Pay Tax Due
Select the appropriate checkbox next to the year to be paid. Multiple years may be selected.
*Convenience Fee not included
Taxes and Assessment Details
Values
| (+) Improvement Homesite Value: | + | N/A | |
| (+) Improvement Non-Homesite Value: | + | N/A | |
| (+) Land Homesite Value: | + | N/A | |
| (+) Land Non-Homesite Value: | + | N/A | Ag / Timber Use Value |
| (+) Curr Use (HS): | + | N/A | N/A |
| (+) Curr Use (NHS): | + | N/A | N/A |
| | | -------------------------- | |
| (=) Market Value: | = | N/A | |
| (–) Productivity Loss: | – | N/A | |
| | | -------------------------- | |
| (=) Subtotal: | = | N/A | |
| (+) Senior Appraised Value: | + | N/A | |
| (+) Non-Senior Appraised Value: | + | N/A | |
| | | -------------------------- | |
| (=) Total Appraised Value: | = | N/A | |
| (–) Senior Exemption Loss: | – | N/A | |
| (–) Exemption Loss: | – | N/A | |
| | | -------------------------- | |
| (=) Taxable Value: | = | N/A | |
Taxing Jurisdiction
| Owner: | CALPITO JOHN ETAL | | |
| % Ownership: | 100.0000000000% | | |
| Total Value: | N/A | | |
| Tax Area: | 16 - 127 CD1 |
| 110001 | County Road General | N/A | N/A | N/A | N/A | | |
| 010170 | Chelan County | N/A | N/A | N/A | N/A | | |
| 155001 | Veteran's Relief | N/A | N/A | N/A | N/A | | |
| 160001 | Mental Health | N/A | N/A | N/A | N/A | | |
| 657101 | Cemetery No 1 | N/A | N/A | N/A | N/A | | |
| 644001 | Regional Library | N/A | N/A | N/A | N/A | | |
| 652025 | State School 2 Refund | N/A | N/A | N/A | N/A | | |
| 107001 | Flood Control Zone | N/A | N/A | N/A | N/A | | |
| 671101 | Port General | N/A | N/A | N/A | N/A | | |
| 654081 | Entiat SD 127 General | N/A | N/A | N/A | N/A | | |
| 654090 | Entiat SD 127 Bond | N/A | N/A | N/A | N/A | | |
| 652001 | State School Refund | N/A | N/A | N/A | N/A | | |
| 652003 | State School 2 | N/A | N/A | N/A | N/A | | |
| 652005 | State School | N/A | N/A | N/A | N/A | | |
| | Total Tax Rate: | N/A | | | | | |
| | | | | Taxes w/Current Exemptions: | N/A | | |
| | | | | Taxes w/o Exemptions: | N/A | | |
Improvement / Building
Sketch
| No sketches available for this property. |
Property Image
Land
| 1 | RES 500 | RESIDUAL $500/A | 19.0000 | 827640.00 | 0.00 | 0.00 | 1.00 | N/A | N/A |
| 2 | SV 25K | SITE VALUE $25,000 | 1.0000 | 43560.00 | 0.00 | 0.00 | 1.00 | N/A | N/A |
Roll Value History
| 2026 | N/A | N/A | N/A | N/A | N/A |
| 2025 | $0 | $17,400 | $0 | $17,400 | $17,400 |
| 2024 | $0 | $17,400 | $0 | $17,400 | $17,400 |
| 2023 | $0 | $17,400 | $0 | $17,400 | $17,400 |
| 2022 | $0 | $17,400 | $0 | $17,400 | $17,400 |
| 2021 | $0 | $13,300 | $0 | $13,300 | $13,300 |
| 2020 | $0 | $13,300 | $0 | $13,300 | $13,300 |
| 2019 | $0 | $12,100 | $0 | $12,100 | $12,100 |
| 2018 | $0 | $12,100 | $0 | $12,100 | $12,100 |
| 2017 | $0 | $12,100 | $0 | $12,100 | $12,100 |
| 2016 | $0 | $12,100 | $0 | $12,100 | $12,100 |
| 2015 | $0 | $11,000 | $0 | $11,000 | $11,000 |
| 2014 | $0 | $10,000 | $0 | $10,000 | $10,000 |
| 2013 | $0 | $10,000 | $0 | $10,000 | $10,000 |
| 2012 | $0 | $10,000 | $0 | $10,000 | $10,000 |
| 2011 | $0 | $10,000 | $0 | $10,000 | $10,000 |
| 2010 | $0 | $10,000 | $0 | $10,000 | $10,000 |
| 2009 | $0 | $10,000 | $0 | $10,000 | $10,000 |
| 2008 | $0 | $10,000 | $0 | $10,000 | $10,000 |
| 2007 | $0 | $10,000 | $0 | $10,000 | $10,000 |
Deed and Sales History
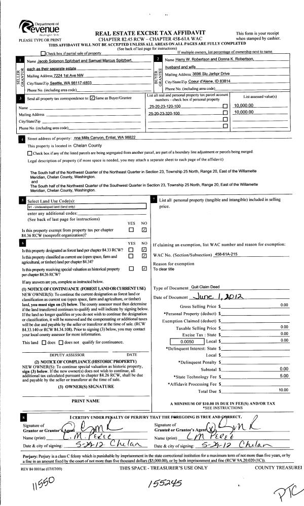
| 1 | 06/04/2012 | Q | Quit Claim Deed | | ROBERTSON HARRY W | | | | 155245 | 2361913 |
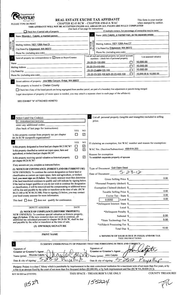
| 2 | 05/31/2012 | Q | Quit Claim Deed | | CALPITO JOHN | | | | 155224 | 2361732 |
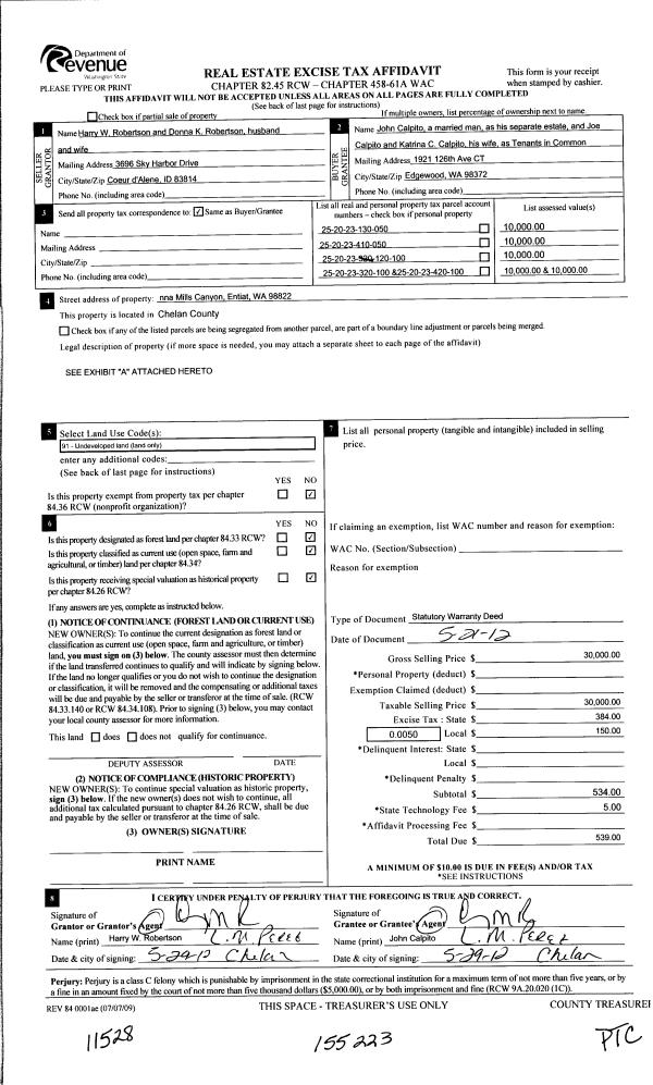
| 3 | 05/31/2012 | SWD | Statutory Warranty Deed | ROBERTSON HARRY W | CALPITO JOHN ETAL | | | $30,000.00 | 155223 | 2361730 |
|   | |
| 4 | 07/29/2008 | W | Warranty Deed | | ROBERTSON HARRY W | | | | 0 | 2287067 |
| 5 | 01/05/2005 | C | Real Estate Contract | SPITZBART SEEMA | ROBERTSON HARRY | | | | 0 | 2190759 |
| 6 | | OT | Conversion Code Only | | MAX SPITZBART ETAL | 866 | 1031 | | 0 | |
| 7 | 10/21/1986 | SP WD | Special Warranty Deed | | SEEMAH J SPITZBART | 866 | 1031 | | 0 | |
| 8 | 01/05/2005 | C | Real Estate Contract | | | | | $22,500.00 | 12623903 | 2190759 |
Payout Agreement
| No payout information available.. |