Property
Account |
Property ID: | 21070 | Abbreviated Legal Description: | T 23N R 19EWM S 04 LOT 2 SP 2011-073 LOT B BLA 2008-155 LOT 2 SP 3268 SESE 3.2600 ACRES |
Geographic ID: | 231904440100 | Agent Code: | |
Type: | Real | | |
Tax Area: | 60 - 222 F6 | Land Use Code | 11 |
Open Space: | N | DFL | N |
Historic Property: | N | Remodel Property: | N |
Multi-Family Redevelopment: | N | | |
Township: | 23N | Section: | 04 |
Range: | 19EWM | Legal Acres: | 3.2600 |
Location |
Address: | 4626 RANK RD CASHMERE, WA 98815 | Mapsco: | |
Neighborhood: | Cycle 1 Cashmere south Div 4 Res | Map ID: | 1CSHS04R01 |
Neighborhood CD: | 1CSHS04R01 |
Owner |
Name: | BUMGARNER HOWARD S | Owner ID: | 126765 |
Mailing Address: | 4626 RANK RD CASHMERE, WA 98815 | % Ownership: | % |
| | Exemptions: | |
Pay Tax Due
Select the appropriate checkbox next to the year to be paid. Multiple years may be selected.
*Convenience Fee not included
Taxes and Assessment Details
Values
(+) Improvement Homesite Value: | + | $372,136 | |
(+) Improvement Non-Homesite Value: | + | $41,056 | |
(+) Land Homesite Value: | + | $210,240 | |
(+) Land Non-Homesite Value: | + | $42,843 | |
(+) Curr Use (HS): | + | $0 | $0 |
(+) Curr Use (NHS): | + | $0 | $0 |
| | -------------------------- | |
(=) Market Value: | = | $666,275 | |
(–) Productivity Loss: | – | $0 | |
| | -------------------------- | |
(=) Subtotal: | = | $666,275 | |
(+) Senior Appraised Value: | + | $0 | |
(+) Non-Senior Appraised Value: | + | $666,275 | |
| | -------------------------- | |
(=) Total Appraised Value: | = | $666,275 | |
(–) Senior Exemption Loss: | – | $0 | |
(–) Exemption Loss: | – | $0 | |
| | -------------------------- | |
(=) Taxable Value: | = | $666,275 | |
Taxing Jurisdiction
Owner: | BUMGARNER HOWARD S | | |
% Ownership: | 100.0000000000% | | |
Total Value: | N/A | | |
Tax Area: | 60 - 222 F6 |
110001 | County Road General | N/A | N/A | N/A | N/A | | |
010170 | Chelan County | N/A | N/A | N/A | N/A | | |
155001 | Veteran's Relief | N/A | N/A | N/A | N/A | | |
160001 | Mental Health | N/A | N/A | N/A | N/A | | |
656601 | Fire No 6 General | N/A | N/A | N/A | N/A | | |
644001 | Regional Library | N/A | N/A | N/A | N/A | | |
652005 | State School | N/A | N/A | N/A | N/A | | |
652025 | State School 2 Refund | N/A | N/A | N/A | N/A | | |
107001 | Flood Control Zone | N/A | N/A | N/A | N/A | | |
671101 | Port General | N/A | N/A | N/A | N/A | | |
654121 | Cashmere SD 222 General | N/A | N/A | N/A | N/A | | |
654130 | Cashmere SD 222 Bond | N/A | N/A | N/A | N/A | | |
654135 | Cashmere SD 222 Cap Projects | N/A | N/A | N/A | N/A | | |
652001 | State School Refund | N/A | N/A | N/A | N/A | | |
652003 | State School 2 | N/A | N/A | N/A | N/A | | |
| Total Tax Rate: | N/A | | | | | |
| | | | Taxes w/Current Exemptions: | N/A | | |
| | | | Taxes w/o Exemptions: | N/A | | |
Improvement / Building
Improvement #1: | RESIDENTIAL | State Code: | 11 | 1742.0 sqft | Value: | $372,136 |
Exterior Wall: | Metal or Vinyl | Heating/Cooling: | Heat Pump | Number of Bathrooms: | 3 | Number of Bedrooms: | 3 |
|
| Type | Description | Class CD | Sub Class CD | Year Built | Area |
| MA | Main | AVERAGE | 1 STY | 1994 | 1742.0 |
| GAR-ATT | Attached Garage | AVERAGE | 1 STY | 1994 | 1296.0 |
| PP-OPEN | Open Concrete Porch | GOOD | * | 1994 | 308.0 |
| DECK | Open Wood Deck | AVERAGE | * | 1994 | 160.0 |
Improvement #2: | RESIDENTIAL | State Code: | 11 | 0.0 sqft | Value: | $41,056 |
Sketch
No sketches available for this property. |
Property Image
Land
1 | SV 100K | SITE VALUE $100,000 | 1.0000 | 43560.00 | 0.00 | 0.00 | 1.00 | $210,240 | $0 |
2 | RES 300 | RESIDUAL $300/A | 1.2600 | 54885.60 | 0.00 | 0.00 | 1.00 | $795 | $0 |
3 | RES 20K | RESIDUAL $20,000/A | 1.0000 | 43560.00 | 0.00 | 0.00 | 1.00 | $42,048 | $0 |
Roll Value History
2025 | N/A | N/A | N/A | N/A | N/A |
2024 | $382,163 | $246,053 | $0 | $628,216 | $628,216 |
2023 | $390,646 | $246,053 | $0 | $636,699 | $636,699 |
2022 | $305,542 | $299,982 | $0 | $605,524 | $605,524 |
2021 | $196,841 | $299,982 | $0 | $496,823 | $496,823 |
2020 | $316,595 | $205,003 | $0 | $521,598 | $521,598 |
2019 | $297,950 | $139,638 | $0 | $437,588 | $437,588 |
2018 | $302,952 | $128,275 | $0 | $431,227 | $431,227 |
2017 | $255,526 | $133,620 | $0 | $389,146 | $389,146 |
2016 | $161,996 | $120,378 | $0 | $282,374 | $127,998 |
2015 | $163,799 | $120,378 | $0 | $284,177 | $127,998 |
2014 | $158,662 | $120,378 | $0 | $279,040 | $185,947 |
2013 | $160,389 | $120,378 | $0 | $280,767 | $86,606 |
2012 | $169,088 | $120,378 | $0 | $289,466 | $86,606 |
2011 | $198,018 | $155,940 | $0 | $353,958 | $151,098 |
2010 | $198,018 | $155,940 | $0 | $353,958 | $151,098 |
2009 | $198,018 | $172,540 | $0 | $370,558 | $167,698 |
2008 | $154,499 | $60,620 | $0 | $215,119 | $215,119 |
2007 | $125,569 | $79,574 | $0 | $205,143 | $173,490 |
2006 | $125,569 | $79,574 | $0 | $205,143 | $173,489 |
Deed and Sales History
1 | 03/27/2024 | AFF | Affidavit | BUMGARNER HOWARD S & KAY J | BUMGARNER HOWARD S | | | | 0 | 2592484 |
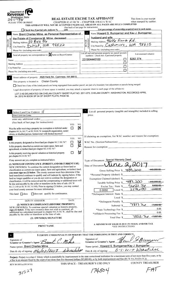
2 | 06/02/2017 | PR | Personal Representatives Deed | MILNE CONSTANCE M | BUMGARNER HOWARD S & KAY J | | | $439,200.00 | 174504 | 2458548 |
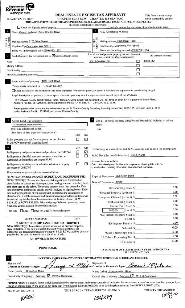
3 | 02/17/2012 | Q | Quit Claim Deed | MILNE GREGG L & BRENT C PR ESTATE OF JAMES MILNE | MILNE CONSTANCE M | | | | 154289 | 2356441 |
4 | 06/02/2010 | SWD | Statutory Warranty Deed | | MILNE CONSTANCE M | | | $4,349.00 | 149116 | 2324251 |
  | |
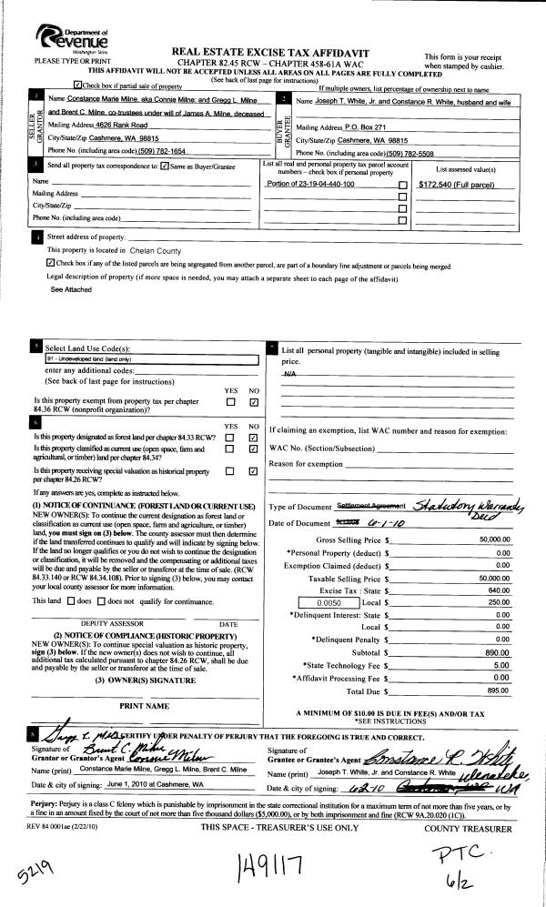
5 | 06/02/2010 | SWD | Statutory Warranty Deed | MILNE COSTANCE M ETAL | WHITE JOSEPH T & CONSTANCE R | | | $50,000.00 | 149117 | 2324250 |
  | |
6 | 05/19/1999 | O | Other | CHELAN CO | MILNE JAMES | | | | 0 | 2053387 |
7 | 01/21/1999 | Q | Quit Claim Deed | CASHMERE HGTS | MILNE ALLEN | | | | 0 | 2045162 |
8 | 04/08/1996 | WFD | Warranty Fulfillment Deed | KENNEDY DOROTHY | KENNEDY ALBERT | 1062 | 2158 | | 0 | |
9 | 11/13/1995 | SWD | Statutory Warranty Deed | MILNE JAMES ALL | WHITE JOSEPH T | 1054 | 1082 | | 0 | |
10 | 11/13/1995 | O | Other | MILNE JAMES A | WHITE JOSEPH T | 1054 | 1077 | | 0 | |
11 | 09/12/1995 | Q | Quit Claim Deed | BIXLER FERN G E | MILNE JAMES A | 1050 | 2014 | | 0 | |
12 | 12/23/1993 | Q | Quit Claim Deed | MILNE, JAMES A | | 1010 | 960 | | 0 | |
13 | 12/23/1993 | Q | Quit Claim Deed | KENNEDY A KIM | MILNE JAMES ALL | 1010 | 960 | | 0 | |
14 | 08/04/1989 | AMND REC | Amended Real Estate Contract | KENNEDY DOROTHY | KENNEDY ALBERT | 914 | 1190 | | 0 | |
15 | 09/21/1965 | SWD | Statutory Warranty Deed | | MILNE CONSTANCE M | 673 | 1052 | | 0 | |
16 | 04/19/1957 | Q | Quit Claim Deed | ALBERT A KENNED | Y | 567 | 11 | | 0 | |
17 | 01/21/1999 | Q | Quit Claim Deed | | | | | | 10060200 | 2045164 |
18 | 01/21/1999 | Q | Quit Claim Deed | | | | | | 10060300 | 2045163 |
19 | 01/21/1999 | Q | Quit Claim Deed | | | | | | 10060400 | 2045162 |
Payout Agreement
No payout information available.. |