Property
Account |
| Property ID: | 20616 | Abbreviated Legal Description: | T 23N R 18EWM S 18 NWSW 1.7100 ACRES |
| Geographic ID: | 231818320150 | Agent Code: | |
| Type: | Real | | |
| Tax Area: | 48 - 228 F6 CD2 H1 | Land Use Code | 19 |
| Open Space: | N | DFL | N |
| Historic Property: | N | Remodel Property: | N |
| Multi-Family Redevelopment: | N | | |
| Township: | 23N | Section: | 18 |
| Range: | 18EWM | Legal Acres: | 1.7100 |
Location |
| Address: | 149 NILES CREEK LN PESHASTIN, WA 98847 | Mapsco: | |
| Neighborhood: | Cycle 3 Blewett Pass div 1 RES | Map ID: | 3BLTP01R01 |
| Neighborhood CD: | 3BLTP01R01 |
Owner |
| Name: | TAGLIS LLC | Owner ID: | 118143 |
| Mailing Address: | 10824 E STEVE LN SPOKANE VALLEY, WA 99206 | % Ownership: | % |
| | | Exemptions: | |
Pay Tax Due
Select the appropriate checkbox next to the year to be paid. Multiple years may be selected.
*Convenience Fee not included
Taxes and Assessment Details
Values
| (+) Improvement Homesite Value: | + | $0 | |
| (+) Improvement Non-Homesite Value: | + | $63,159 | |
| (+) Land Homesite Value: | + | $0 | |
| (+) Land Non-Homesite Value: | + | $103,448 | |
| (+) Curr Use (HS): | + | $0 | $0 |
| (+) Curr Use (NHS): | + | $0 | $0 |
| | | -------------------------- | |
| (=) Market Value: | = | $166,607 | |
| (–) Productivity Loss: | – | $0 | |
| | | -------------------------- | |
| (=) Subtotal: | = | $166,607 | |
| (+) Senior Appraised Value: | + | $0 | |
| (+) Non-Senior Appraised Value: | + | $166,607 | |
| | | -------------------------- | |
| (=) Total Appraised Value: | = | $166,607 | |
| (–) Senior Exemption Loss: | – | $0 | |
| (–) Exemption Loss: | – | $0 | |
| | | -------------------------- | |
| (=) Taxable Value: | = | $166,607 | |
Taxing Jurisdiction
| Owner: | TAGLIS LLC | | |
| % Ownership: | 100.0000000000% | | |
| Total Value: | $166,607 | | |
| Tax Area: | 48 - 228 F6 CD2 H1 |
| 110001 | County Road General | 0.8076331830 | $166,607 | $166,607 | $134.56 | | |
| 010170 | Chelan County | 0.7131947979 | $166,607 | $166,607 | $118.82 | | |
| 155001 | Veteran's Relief | 0.0131417976 | $166,607 | $166,607 | $2.19 | | |
| 160001 | Mental Health | 0.0178579654 | $166,607 | $166,607 | $2.98 | | |
| 657201 | Cemetery No 2 | 0.0487464063 | $166,607 | $166,607 | $8.12 | | |
| 656601 | Fire No 6 General | 0.3200866632 | $166,607 | $166,607 | $53.33 | | |
| 107001 | Flood Control Zone | 0.0399650208 | $166,607 | $166,607 | $6.66 | | |
| 654170 | Cascade SD 228 Bond | 1.0041945812 | $166,607 | $166,607 | $167.31 | | |
| 654175 | Cascade SD 228 Cap Projects | 0.1254721888 | $166,607 | $166,607 | $20.90 | | |
| 652001 | State School Refund | 0.0000948042 | $166,607 | $166,607 | $0.02 | | |
| 652003 | State School 2 | 0.8859835425 | $166,607 | $166,607 | $147.61 | | |
| 652005 | State School | 1.6474423412 | $166,607 | $166,607 | $274.48 | | |
| 652025 | State School 2 Refund | 0.0000512608 | $166,607 | $166,607 | $0.01 | | |
| 692101 | Hospital No 1 General | 0.1352428658 | $166,607 | $166,607 | $22.53 | | |
| 692110 | Hospital No 1 Bond | 0.1453815530 | $166,607 | $166,607 | $24.22 | | |
| 692150 | Hospital No 1 EMS | 0.3541888773 | $166,607 | $166,607 | $59.01 | | |
| 644001 | Regional Library | 0.2534738555 | $166,607 | $166,607 | $42.23 | | |
| 671101 | Port of Chelan County | 0.1575963345 | $166,607 | $166,607 | $26.26 | | |
| 654161 | Cascade SD 228 General | 0.8034645610 | $166,607 | $166,607 | $133.86 | | |
| | Total Tax Rate: | 7.4732126000 | | | | | |
| | | | | Taxes w/Current Exemptions: | $1,245.10 | | |
| | | | | Taxes w/o Exemptions: | $1,245.10 | | |
Improvement / Building
| Improvement #1: | RESIDENTIAL | State Code: | 19 | 0.0 sqft | Value: | $504 |
| Improvement #2: | RESIDENTIAL | State Code: | 19 | 542.0 sqft | Value: | $62,655 |
| Exterior Wall: | WOOD SIDING | Heating/Cooling: | Stove | | Number of Bathrooms: | 1 | Number of Bedrooms: | 1 |
|
| | Type | Description | Class CD | Sub Class CD | Year Built | Area |
| | MA | Main | LOW | 1 STY | 1978 | 402.0 |
| | LOFT | Loft | LOW | 1 STY | 1978 | 140.0 |
| | DECK | Open Wood Deck | AVERAGE | * | 1978 | 60.0 |
Sketch
| No sketches available for this property. |
Property Image
Land
| 1 | RES 1000 | RESIDUAL $1000/A | 0.7100 | 30927.60 | 0.00 | 0.00 | 1.00 | $1,448 | $0 |
| 2 | SV 50K | SITE VALUE $50,000 | 1.0000 | 43560.00 | 0.00 | 0.00 | 1.00 | $102,000 | $0 |
Roll Value History
| 2026 | N/A | N/A | N/A | N/A | N/A |
| 2025 | $60,520 | $103,448 | $0 | $163,968 | $163,968 |
| 2024 | $63,159 | $103,448 | $0 | $166,607 | $166,607 |
| 2023 | $84,417 | $103,448 | $0 | $187,865 | $187,865 |
| 2022 | $74,715 | $103,448 | $0 | $178,163 | $178,163 |
| 2021 | $47,048 | $94,321 | $0 | $141,369 | $141,369 |
| 2020 | $49,579 | $94,321 | $0 | $143,900 | $143,900 |
| 2019 | $52,911 | $77,079 | $0 | $129,990 | $129,990 |
| 2018 | $31,826 | $38,051 | $0 | $69,877 | $69,877 |
| 2017 | $37,049 | $34,966 | $0 | $72,015 | $72,015 |
| 2016 | $32,307 | $34,966 | $0 | $67,273 | $67,273 |
| 2015 | $30,450 | $30,338 | $0 | $60,788 | $60,788 |
| 2014 | $35,042 | $23,396 | $0 | $58,438 | $58,438 |
| 2013 | $31,602 | $34,709 | $0 | $66,311 | $66,311 |
| 2012 | $34,929 | $33,423 | $0 | $68,352 | $68,352 |
| 2011 | $35,735 | $33,423 | $0 | $69,158 | $69,158 |
| 2010 | $35,564 | $39,650 | $0 | $75,214 | $75,214 |
| 2009 | $31,766 | $53,750 | $0 | $85,516 | $85,516 |
| 2008 | $31,766 | $53,750 | $0 | $85,516 | $85,516 |
| 2007 | $31,766 | $53,750 | $0 | $85,516 | $85,516 |
Deed and Sales History
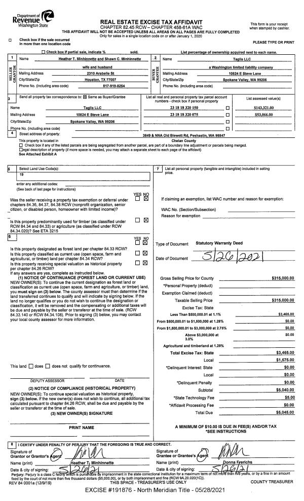
| 1 | 05/28/2021 | SWD | Statutory Warranty Deed | MINHINNETTE HEATHER & SHAWN | TAGLIS LLC | | | $315,000.00 | 191876 | 2545056 |
|   | |
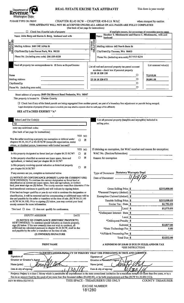
| 2 | 11/29/2018 | SWD | Statutory Warranty Deed | BERG JOHN | MINHINNETTE HEATHER & SHAWN | | | $215,000.00 | 181280 | 2488692 |
|   | |
| 3 | 09/13/2005 | W | Warranty Deed | | BERG JOHN | | | | 0 | 2209154 |
| 4 | 08/12/2005 | SWD | Statutory Warranty Deed | JOHNSTON J SYBR | BERG JOHN | | | | 0 | 2206668 |
| 5 | 08/12/2005 | Q | Quit Claim Deed | PAINTER LARRY | JOHNSTON J SEBR | | | | 0 | 2206667 |
| 6 | 05/07/1992 | W | Warranty Deed | | J SYBRANT JOHNSTON | 968 | 1637 | | 0 | |
| 7 | 05/13/1991 | WFD | Warranty Fulfillment Deed | PAQUETTE ROSA I | PAINTER J SYBRA | 948 | 937 | | 0 | |
| 8 | 05/13/1991 | Q | Quit Claim Deed | PAQUETTE RONALD | PAINTER J SYBRA | 948 | 932 | | 0 | |
| 9 | 05/13/1991 | Q | Quit Claim Deed | STACEY DOLLY | PAINTER J SYBRA | 948 | 927 | | 0 | |
| 10 | 05/13/1991 | Q | Quit Claim Deed | PAQUETTE LEONAR | PAINTER J SYBRA | 948 | 922 | | 0 | |
| 11 | 05/13/1991 | Q | Quit Claim Deed | ROGERS SUZANNE | PAINTER J SYBRA | 948 | 917 | | 0 | |
| 12 | 05/13/1991 | Q | Quit Claim Deed | PAQUETTE ROSA | PAINTER J SYBRA | 948 | 912 | | 0 | |
| 13 | 12/18/1978 | C | Real Estate Contract | PAQUETTE RONALD | BOWERMAN SYBRAN | 761 | 209 | | 0 | |
| 14 | 12/18/1978 | Q | Quit Claim Deed | PAQUETTE LEONAR | PAQUETTE RONALD | 761 | 207 | | 0 | |
| 15 | 07/11/1977 | C | Real Estate Contract | DEY DONALD L | PAQUETTE RONALD | 744 | 1428 | | 0 | |
| 16 | | SWD | Statutory Warranty Deed | | DONALD L DEY | 707 | 1231 | | 0 | |
| 17 | 09/13/2005 | W | Warranty Deed | | | | | | 12992000 | 2209154 |
| 18 | 08/12/2005 | W | Warranty Deed | | | | | $76,500.00 | 12947900 | 2206668 |
| 19 | 08/12/2005 | Q | Quit Claim Deed | | | | | | 12947800 | 2206667 |
Payout Agreement
| No payout information available.. |