Property
Account |
| Property ID: | 20575 | Abbreviated Legal Description: | T 23N R 18EWM S 18 SURV 13/5 & 30/46 PT NWNE 3.5800 ACRES |
| Geographic ID: | 231818120200 | Agent Code: | |
| Type: | Real | | |
| Tax Area: | 48 - 228 F6 CD2 H1 | Land Use Code | 11 |
| Open Space: | N | DFL | N |
| Historic Property: | N | Remodel Property: | N |
| Multi-Family Redevelopment: | N | | |
| Township: | 23N | Section: | 18 |
| Range: | 18EWM | Legal Acres: | 3.5800 |
Location |
| Address: | 4071 US HWY 97 PESHASTIN, WA 98847 | Mapsco: | |
| Neighborhood: | Cycle 3 Blewett Pass div 1 RES | Map ID: | 3BLTP01R01 |
| Neighborhood CD: | 3BLTP01R01 |
Owner |
| Name: | PATTON LAURA M & BUCKLEY BRIAN D | Owner ID: | 122676 |
| Mailing Address: | 4071 US HWY 97 PESHASTIN, WA 98847 | % Ownership: | % |
| | | Exemptions: | |
Pay Tax Due
Select the appropriate checkbox next to the year to be paid. Multiple years may be selected.
*Convenience Fee not included
Taxes and Assessment Details
Values
| (+) Improvement Homesite Value: | + | $0 | |
| (+) Improvement Non-Homesite Value: | + | $160,702 | |
| (+) Land Homesite Value: | + | $0 | |
| (+) Land Non-Homesite Value: | + | $85,804 | |
| (+) Curr Use (HS): | + | $0 | $0 |
| (+) Curr Use (NHS): | + | $0 | $0 |
| | | -------------------------- | |
| (=) Market Value: | = | $246,506 | |
| (–) Productivity Loss: | – | $0 | |
| | | -------------------------- | |
| (=) Subtotal: | = | $246,506 | |
| (+) Senior Appraised Value: | + | $0 | |
| (+) Non-Senior Appraised Value: | + | $246,506 | |
| | | -------------------------- | |
| (=) Total Appraised Value: | = | $246,506 | |
| (–) Senior Exemption Loss: | – | $0 | |
| (–) Exemption Loss: | – | $0 | |
| | | -------------------------- | |
| (=) Taxable Value: | = | $246,506 | |
Taxing Jurisdiction
| Owner: | PATTON LAURA M & BUCKLEY BRIAN D | | |
| % Ownership: | 100.0000000000% | | |
| Total Value: | $246,506 | | |
| Tax Area: | 48 - 228 F6 CD2 H1 |
| 110001 | County Road General | 1.1100696826 | $246,506 | $246,506 | $273.64 | | |
| 010170 | Chelan County | 1.0308400273 | $246,506 | $246,506 | $254.11 | | |
| 155001 | Veteran's Relief | 0.0112499997 | $246,506 | $246,506 | $2.77 | | |
| 160001 | Mental Health | 0.0250000002 | $246,506 | $246,506 | $6.16 | | |
| 657201 | Cemetery No 2 | 0.0627135555 | $246,506 | $246,506 | $15.46 | | |
| 656601 | Fire No 6 General | 0.4223970225 | $246,506 | $246,506 | $104.12 | | |
| 107001 | Flood Control Zone | 0.0549017061 | $246,506 | $246,506 | $13.53 | | |
| 654170 | Cascade SD 228 Bond | 1.4774565683 | $246,506 | $246,506 | $364.20 | | |
| 654175 | Cascade SD 228 Cap Proj | 0.1142549451 | $246,506 | $246,506 | $28.16 | | |
| 652001 | State School Refund | 0.0000539242 | $246,506 | $246,506 | $0.01 | | |
| 652003 | State School 2 | 1.0967484031 | $246,506 | $246,506 | $270.36 | | |
| 652005 | State School | 2.0380122406 | $246,506 | $246,506 | $502.38 | | |
| 652025 | State School 2 Refund | 0.0000287381 | $246,506 | $246,506 | $0.01 | | |
| 692101 | Hospital No 1 General | 0.1916824022 | $246,506 | $246,506 | $47.25 | | |
| 692110 | Hospital No 1 Bond | 0.1871199870 | $246,506 | $246,506 | $46.13 | | |
| 692150 | Hospital No 1 EMS | 0.3841374887 | $246,506 | $246,506 | $94.69 | | |
| 644001 | Regional Library | 0.3693977329 | $246,506 | $246,506 | $91.06 | | |
| 671101 | Port General | 0.2399548335 | $246,506 | $246,506 | $59.15 | | |
| 654161 | Cascade SD 228 General | 1.0492610622 | $246,506 | $246,506 | $258.65 | | |
| | Total Tax Rate: | 9.8652803198 | | | | | |
| | | | | Taxes w/Current Exemptions: | $2,431.84 | | |
| | | | | Taxes w/o Exemptions: | $2,431.84 | | |
Improvement / Building
| Improvement #1: | RESIDENTIAL | State Code: | 11 | 1462.0 sqft | Value: | $147,824 |
| Exterior Wall: | Plywood or Hrdbrd | Fireplace: | Free Standing | | Heating/Cooling: | Baseboard Panel | Number of Bathrooms: | 2 | | Number of Bedrooms: | 3 |   |   |
|
| | Type | Description | Class CD | Sub Class CD | Year Built | Area |
| | MA | Main | FAIR | 1.5 ST FIN | 1910 | 1462.0 |
| | DECK | Open Wood Deck | FAIR | * | 1910 | 144.0 |
| | DECK | Open Wood Deck | AVERAGE | * | 1910 | 96.0 |
| Improvement #2: | RESIDENTIAL | State Code: | 11 | 0.0 sqft | Value: | $6,494 |
| | Type | Description | Class CD | Sub Class CD | Year Built | Area |
| | CP-S | Carport/Patio Cover Shed Roof | FAIR | 1 STY | 2001 | 420.0 |
| | CP-S | Carport/Patio Cover Shed Roof | LOW | 1 STY | 2001 | 128.0 |
| Improvement #3: | RESIDENTIAL | State Code: | 11 | 0.0 sqft | Value: | $2,551 |
| | Type | Description | Class CD | Sub Class CD | Year Built | Area |
| | CP-G | Carport/Patio Cover Gable Roof | FAIR | 1 STY | 1910 | 480.0 |
| Improvement #4: | RESIDENTIAL | State Code: | 11 | 0.0 sqft | Value: | $3,833 |
| | Type | Description | Class CD | Sub Class CD | Year Built | Area |
| | GP-BLD | Pole Type Garage/Bldg | FAIR | 1 STY | 1910 | 225.0 |
| | DECK | Open Wood Deck | FAIR | * | 1910 | 216.0 |
Sketch
| No sketches available for this property. |
Property Image
Land
| 1 | SV 50K | SITE VALUE $50,000 | 1.0000 | 43560.00 | 0.00 | 0.00 | 1.00 | $76,000 | $0 |
| 2 | RES 2.5K | RESIDUAL $2500/A | 2.5800 | 112384.80 | 0.00 | 0.00 | 1.00 | $9,804 | $0 |
Roll Value History
| 2026 | N/A | N/A | N/A | N/A | N/A |
| 2025 | $207,188 | $115,158 | $0 | $322,346 | $322,346 |
| 2024 | $215,683 | $115,158 | $0 | $330,841 | $330,841 |
| 2023 | $287,098 | $115,158 | $0 | $402,256 | $402,256 |
| 2022 | $230,396 | $115,158 | $0 | $345,554 | $345,554 |
| 2021 | $142,850 | $104,997 | $0 | $247,847 | $247,847 |
| 2020 | $147,993 | $104,997 | $0 | $252,990 | $252,990 |
| 2019 | $160,702 | $85,804 | $0 | $246,506 | $246,506 |
| 2018 | $91,589 | $83,546 | $0 | $175,135 | $175,135 |
| 2017 | $96,802 | $76,772 | $0 | $173,574 | $173,574 |
| 2016 | $100,541 | $76,772 | $0 | $177,313 | $177,313 |
| 2015 | $93,784 | $66,611 | $0 | $160,395 | $160,395 |
| 2014 | $106,296 | $51,370 | $0 | $157,666 | $157,666 |
| 2013 | $97,462 | $76,208 | $0 | $173,670 | $173,670 |
| 2012 | $108,039 | $73,385 | $0 | $181,424 | $181,424 |
| 2011 | $111,084 | $73,385 | $0 | $184,469 | $184,469 |
| 2010 | $113,667 | $73,385 | $0 | $187,052 | $187,052 |
| 2009 | $97,777 | $56,450 | $0 | $154,227 | $154,227 |
| 2008 | $97,777 | $56,450 | $0 | $154,227 | $154,227 |
| 2007 | $97,777 | $56,450 | $0 | $154,227 | $154,227 |
Deed and Sales History
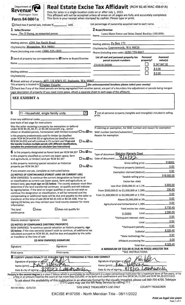
| 1 | 08/11/2022 | SWD | Statutory Warranty Deed | DUONG THO X | PATTON LAURA M & BUCKLEY BRIAN D | | | $518,000.00 | 197056 | 2571714 |
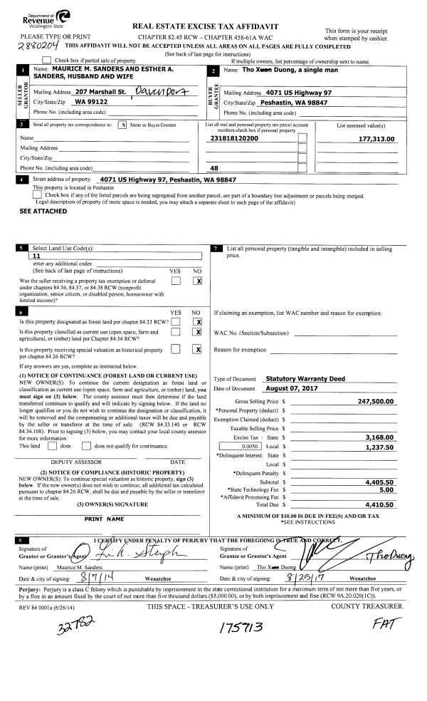
| 2 | 08/25/2017 | SWD | Statutory Warranty Deed | SANDERS MAURICE M | DUONG THO X | | | $247,500.00 | 175713 | 2463711 |
| 3 | 08/23/1999 | W | Warranty Deed | | SANDERS MAURICE M | | | | 0 | 2059516 |
| 4 | 08/04/1998 | C | Real Estate Contract | | SANDERS MAURICE M | | | $119,900.00 | 9878100 | 2033762 |
| 5 | 01/19/1994 | Q | Quit Claim Deed | | PHILLIP LATIMER | 1012 | 428 | | 0 | |
Payout Agreement
| No payout information available.. |