Property
Account |
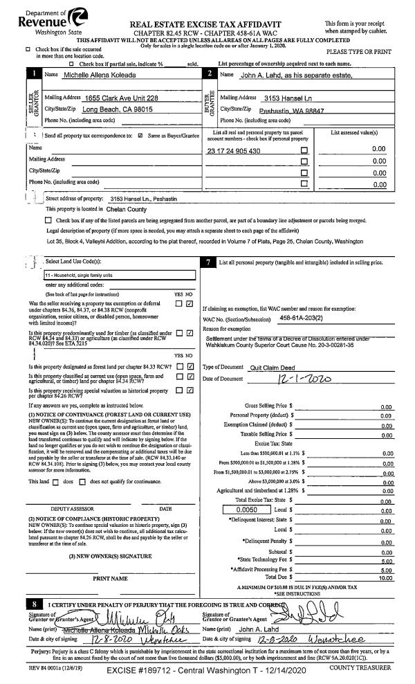
| Property ID: | 20233 | Abbreviated Legal Description: | VALLEYHI BLOCK 4 LOT 35 0.1900 ACRES |
| Geographic ID: | 231724905430 | Agent Code: | |
| Type: | Real | | |
| Tax Area: | 48 - 228 F6 CD2 H1 | Land Use Code | 11 |
| Open Space: | N | DFL | N |
| Historic Property: | N | Remodel Property: | N |
| Multi-Family Redevelopment: | N | | |
| Township: | 23N | Section: | 24 |
| Range: | 17EWM | Legal Acres: | 0.1900 |
Location |
| Address: | 3153 HANSEL LN PESHASTIN, WA 98847 | Mapsco: | |
| Neighborhood: | Cycle 3 Blewett Pass div 1 RES | Map ID: | 3BLTP01R01 |
| Neighborhood CD: | 3BLTP01R01 |
Owner |
| Name: | LAHD JOHN A | Owner ID: | 40731 |
| Mailing Address: | 3153 HANSEL LN PESHASTIN, WA 98847-9420 | % Ownership: | % |
| | | Exemptions: | |
Pay Tax Due
Select the appropriate checkbox next to the year to be paid. Multiple years may be selected.
*Convenience Fee not included
Taxes and Assessment Details
Values
| (+) Improvement Homesite Value: | + | $0 | |
| (+) Improvement Non-Homesite Value: | + | $244,919 | |
| (+) Land Homesite Value: | + | $0 | |
| (+) Land Non-Homesite Value: | + | $52,896 | |
| (+) Curr Use (HS): | + | $0 | $0 |
| (+) Curr Use (NHS): | + | $0 | $0 |
| | | -------------------------- | |
| (=) Market Value: | = | $297,815 | |
| (–) Productivity Loss: | – | $0 | |
| | | -------------------------- | |
| (=) Subtotal: | = | $297,815 | |
| (+) Senior Appraised Value: | + | $0 | |
| (+) Non-Senior Appraised Value: | + | $297,815 | |
| | | -------------------------- | |
| (=) Total Appraised Value: | = | $297,815 | |
| (–) Senior Exemption Loss: | – | $0 | |
| (–) Exemption Loss: | – | $0 | |
| | | -------------------------- | |
| (=) Taxable Value: | = | $297,815 | |
Taxing Jurisdiction
| Owner: | LAHD JOHN A | | |
| % Ownership: | 100.0000000000% | | |
| Total Value: | $297,815 | | |
| Tax Area: | 48 - 228 F6 CD2 H1 |
| 110001 | County Road General | 1.1100696826 | $297,815 | $297,815 | $330.60 | | |
| 010170 | Chelan County | 1.0308400273 | $297,815 | $297,815 | $307.00 | | |
| 155001 | Veteran's Relief | 0.0112499997 | $297,815 | $297,815 | $3.35 | | |
| 160001 | Mental Health | 0.0250000002 | $297,815 | $297,815 | $7.45 | | |
| 657201 | Cemetery No 2 | 0.0627135555 | $297,815 | $297,815 | $18.68 | | |
| 656601 | Fire No 6 General | 0.4223970225 | $297,815 | $297,815 | $125.80 | | |
| 107001 | Flood Control Zone | 0.0549017061 | $297,815 | $297,815 | $16.35 | | |
| 654170 | Cascade SD 228 Bond | 1.4774565683 | $297,815 | $297,815 | $440.01 | | |
| 654175 | Cascade SD 228 Cap Proj | 0.1142549451 | $297,815 | $297,815 | $34.03 | | |
| 652001 | State School Refund | 0.0000539242 | $297,815 | $297,815 | $0.02 | | |
| 652003 | State School 2 | 1.0967484031 | $297,815 | $297,815 | $326.63 | | |
| 652005 | State School | 2.0380122406 | $297,815 | $297,815 | $606.95 | | |
| 652025 | State School 2 Refund | 0.0000287381 | $297,815 | $297,815 | $0.01 | | |
| 692101 | Hospital No 1 General | 0.1916824022 | $297,815 | $297,815 | $57.09 | | |
| 692110 | Hospital No 1 Bond | 0.1871199870 | $297,815 | $297,815 | $55.73 | | |
| 692150 | Hospital No 1 EMS | 0.3841374887 | $297,815 | $297,815 | $114.40 | | |
| 644001 | Regional Library | 0.3693977329 | $297,815 | $297,815 | $110.01 | | |
| 671101 | Port General | 0.2399548335 | $297,815 | $297,815 | $71.46 | | |
| 654161 | Cascade SD 228 General | 1.0492610622 | $297,815 | $297,815 | $312.49 | | |
| | Total Tax Rate: | 9.8652803198 | | | | | |
| | | | | Taxes w/Current Exemptions: | $2,938.06 | | |
| | | | | Taxes w/o Exemptions: | $2,938.06 | | |
Improvement / Building
| Improvement #1: | RESIDENTIAL | State Code: | 11 | 1872.0 sqft | Value: | $228,124 |
| Exterior Wall: | WOOD SIDING | Heating/Cooling: | Baseboard Panel | | Number of Bathrooms: | 2 | Number of Bedrooms: | 4 |
|
| | Type | Description | Class CD | Sub Class CD | Year Built | Area |
| | MA | Main | FAIR | 2 STY | 1977 | 1872.0 |
| | DECK | Open Wood Deck | AVERAGE | 2 STY | 1977 | 328.0 |
| | DECK | Open Wood Deck | AVERAGE | 2 STY | 1977 | 160.0 |
| Improvement #2: | RESIDENTIAL | State Code: | 11 | 0.0 sqft | Value: | $16,795 |
| | Type | Description | Class CD | Sub Class CD | Year Built | Area |
| | GAR-DET | Detached Garage | FAIR | 1 STY | 1977 | 576.0 |
| | CP-S | Carport/Patio Cover Shed Roof | FAIR | * | 1977 | 288.0 |
Sketch
| No sketches available for this property. |
Property Image
Land
| 1 | SV 40K | SITE VALUE $40,000 | 0.1900 | 8250.00 | 0.00 | 0.00 | 1.00 | $52,896 | $0 |
Roll Value History
| 2026 | N/A | N/A | N/A | N/A | N/A |
| 2025 | $328,732 | $88,944 | $0 | $417,676 | $417,676 |
| 2024 | $331,271 | $88,944 | $0 | $420,215 | $420,215 |
| 2023 | $430,824 | $88,944 | $0 | $519,768 | $519,768 |
| 2022 | $328,975 | $88,944 | $0 | $417,919 | $417,919 |
| 2021 | $313,341 | $50,592 | $0 | $363,933 | $363,933 |
| 2020 | $321,722 | $50,592 | $0 | $372,314 | $372,314 |
| 2019 | $244,919 | $52,896 | $0 | $297,815 | $297,815 |
| 2018 | $152,814 | $64,528 | $0 | $217,342 | $217,342 |
| 2017 | $142,375 | $73,984 | $0 | $216,359 | $216,359 |
| 2016 | $144,511 | $73,984 | $0 | $218,495 | $218,495 |
| 2015 | $176,711 | $64,192 | $0 | $240,903 | $240,903 |
| 2014 | $133,601 | $32,760 | $0 | $166,361 | $166,361 |
| 2013 | $127,666 | $48,600 | $0 | $176,266 | $176,266 |
| 2012 | $141,314 | $52,000 | $0 | $193,314 | $193,314 |
| 2011 | $143,262 | $52,000 | $0 | $195,262 | $195,262 |
| 2010 | $143,262 | $52,000 | $0 | $195,262 | $195,262 |
| 2009 | $143,047 | $40,000 | $0 | $183,047 | $183,047 |
| 2008 | $143,047 | $40,000 | $0 | $183,047 | $183,047 |
| 2007 | $143,047 | $40,000 | $0 | $183,047 | $183,047 |
Deed and Sales History
| 1 | 12/14/2020 | Q | Quit Claim Deed | KOLEADA MICHELLE A | LAHD JOHN A | | | $0.00 | 189712 | 2531899 |
| 2 | 04/18/1997 | Q | Quit Claim Deed | LAHD JOHN A | LAHD JOHN A | | | | 0 | 2004160 |
| 3 | 03/23/1989 | Q | Quit Claim Deed | SHERRARD PAMELA | LAHD JOHN ALVIN | 907 | 2127 | | 0 | |
| 4 | 10/22/1979 | WFD | Warranty Fulfillment Deed | | LAHD JOHN A | 771 | 2640 | | 0 | |
| 5 | 07/29/1977 | C | Real Estate Contract | | MERLE K HANSON | 745 | 608 | | 0 | |
| 6 | 04/18/1997 | Q | Quit Claim Deed | | | 2000 | 4160 | | 9351200 | |
Payout Agreement
| No payout information available.. |