Property
Account |
| Property ID: | 63968 | Abbreviated Legal Description: | REDHAWK CANYON DIVISION 1 PHASE 2 BLOCK 3 LOT 1, 0.1800 ACRES |
| Geographic ID: | 222005817010 | Agent Code: | |
| Type: | Real | | |
| Tax Area: | 802 - W 246 F1 WB WVFD | Land Use Code | |
| Open Space: | N | DFL | N |
| Historic Property: | N | Remodel Property: | N |
| Multi-Family Redevelopment: | N | | |
| Township: | 22N | Section: | 05 |
| Range: | 20EWM | Legal Acres: | 0.1800 |
Location |
| Address: | 2101 YARROW RD WENATCHEE, WA 98801 | Mapsco: | |
| Neighborhood: | Cycle 2 Wenatchee mid div 1 RES | Map ID: | 2WENM01R01 |
| Neighborhood CD: | 2WENM01R01 |
Owner |
| Name: | MOTT DOUGLAS S & LEE ANN | Owner ID: | 83704 |
| Mailing Address: | 2101 YARROW RD WENATCHEE, WA 98801 | % Ownership: | % |
| | | Exemptions: | |
Pay Tax Due
There is currently No Amount Due on this property.
Taxes and Assessment Details
Values
| (+) Improvement Homesite Value: | + | N/A | |
| (+) Improvement Non-Homesite Value: | + | N/A | |
| (+) Land Homesite Value: | + | N/A | |
| (+) Land Non-Homesite Value: | + | N/A | Ag / Timber Use Value |
| (+) Curr Use (HS): | + | N/A | N/A |
| (+) Curr Use (NHS): | + | N/A | N/A |
| | | -------------------------- | |
| (=) Market Value: | = | N/A | |
| (–) Productivity Loss: | – | N/A | |
| | | -------------------------- | |
| (=) Subtotal: | = | N/A | |
| (+) Senior Appraised Value: | + | N/A | |
| (+) Non-Senior Appraised Value: | + | N/A | |
| | | -------------------------- | |
| (=) Total Appraised Value: | = | N/A | |
| (–) Senior Exemption Loss: | – | N/A | |
| (–) Exemption Loss: | – | N/A | |
| | | -------------------------- | |
| (=) Taxable Value: | = | N/A | |
Taxing Jurisdiction
| Owner: | MOTT DOUGLAS S & LEE ANN | | |
| % Ownership: | 100.0000000000% | | |
| Total Value: | N/A | | |
| Tax Area: | 802 - W 246 F1 WB WVFD |
| 010170 | Chelan County | N/A | N/A | N/A | N/A | | |
| 155001 | Veteran's Relief | N/A | N/A | N/A | N/A | | |
| 160001 | Mental Health | N/A | N/A | N/A | N/A | | |
| 656101 | Fire No 1 General | N/A | N/A | N/A | N/A | | |
| 656110 | Fire No 1 Bond | N/A | N/A | N/A | N/A | | |
| 644001 | Regional Library | N/A | N/A | N/A | N/A | | |
| 652025 | State School 2 Refund | N/A | N/A | N/A | N/A | | |
| 693041 | Wenatchee General | N/A | N/A | N/A | N/A | | |
| 107001 | Flood Control Zone | N/A | N/A | N/A | N/A | | |
| 656201 | Wenatchee Valley Fire Department | N/A | N/A | N/A | N/A | | |
| 671101 | Port General | N/A | N/A | N/A | N/A | | |
| 654201 | Wenatchee SD 246 General | N/A | N/A | N/A | N/A | | |
| 654210 | Wenatchee SD 246 Bond | N/A | N/A | N/A | N/A | | |
| 652001 | State School Refund | N/A | N/A | N/A | N/A | | |
| 652003 | State School 2 | N/A | N/A | N/A | N/A | | |
| 652005 | State School | N/A | N/A | N/A | N/A | | |
| | Total Tax Rate: | N/A | | | | | |
| | | | | Taxes w/Current Exemptions: | N/A | | |
| | | | | Taxes w/o Exemptions: | N/A | | |
Improvement / Building
| Improvement #1: | RESIDENTIAL | State Code: | 11 | 2302.8 sqft | Value: | N/A |
| Exterior Wall: | Plywood or Hrdbrd | Heating/Cooling: | Heat Pump | | Number of Bathrooms: | 2.5 | Number of Bedrooms: | 4 |
|
| | Type | Description | Class CD | Sub Class CD | Year Built | Area |
| | MA | Main | AVERAGE | 1.5 ST FIN | 2012 | 2302.8 |
| | GAR-BI | Built-In Garage | AVERAGE | 1.5 ST FIN | 2012 | 753.0 |
| | PP-OPEN | Open Concrete Porch | GOOD | * | 2012 | 400.9 |
| | PP-OPEN | Open Concrete Porch | GOOD | * | 2012 | 56.0 |
| | CP-G | Carport/Patio Cover Gable Roof | GOOD | 1 STY | 2012 | 192.0 |
Sketch
Property Image
Land
| 1 | SV 100K | SITE VALUE $100,000 | 0.1800 | 7840.80 | 0.00 | 0.00 | 1.00 | N/A | N/A |
Roll Value History
| 2026 | N/A | N/A | N/A | N/A | N/A |
| 2025 | $515,417 | $128,000 | $0 | $643,417 | $643,417 |
| 2024 | $482,366 | $121,000 | $0 | $603,366 | $603,366 |
| 2023 | $704,812 | $90,300 | $0 | $795,112 | $795,112 |
| 2022 | $486,874 | $99,330 | $0 | $586,204 | $586,204 |
| 2021 | $373,381 | $77,000 | $0 | $450,381 | $450,381 |
| 2020 | $378,385 | $77,000 | $0 | $455,385 | $455,385 |
| 2019 | $336,042 | $77,000 | $0 | $413,042 | $413,042 |
| 2018 | $342,908 | $70,000 | $0 | $412,908 | $412,908 |
| 2017 | $308,637 | $74,900 | $0 | $383,537 | $383,537 |
| 2016 | $300,497 | $70,000 | $0 | $370,497 | $370,497 |
| 2015 | $250,770 | $87,500 | $0 | $338,270 | $338,270 |
| 2014 | $221,587 | $87,500 | $0 | $309,087 | $309,087 |
| 2013 | $179,364 | $70,000 | $0 | $249,364 | $249,364 |
| 2012 | $0 | $70,000 | $0 | $70,000 | $70,000 |
| 2011 | $0 | $0 | $0 | $0 | $0 |
Deed and Sales History
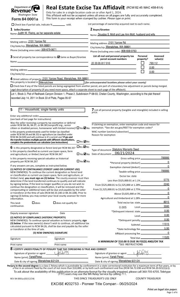
| 1 | 06/25/2024 | SWD | Statutory Warranty Deed | RISING RICHARD P & JUDITH W | MOTT DOUGLAS S & LEE ANN | | | $700,000.00 | 202753 | 2595789 |
| 2 | 06/25/2024 | AFF | Affidavit | | | | | | 0 | 2595782 |
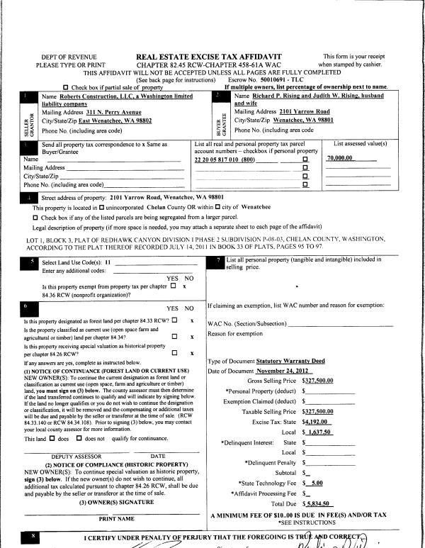
| 3 | 12/03/2012 | SWD | Statutory Warranty Deed | ROBERTS CONSTRUCTION LLC | RISING RICHARD P & JUDITH W | | | $327,500.00 | 157074 | 2372581 |
| 4 | 07/31/2012 | SWD | Statutory Warranty Deed | PHILLIPPI DAVID ETAL | ROBERTS CONSTRUCTION LLC | | | $155,800.00 | 155767 | 2365123 |
|   | |
| 5 | 05/11/2009 | Q | Quit Claim Deed | PHILLIPPI LAND LLC | PHILLIPPI DAVID ETAL | | | | 0 | 2302820 |
Payout Agreement
| No payout information available.. |