Property
Account |
| Property ID: | 37100 | Abbreviated Legal Description: | ENTIAT VALLEY PHASE I LOT 104, LOT A BLA 2016-249 LOT B BLA 2006-021 21.6200 ACRES |
| Geographic ID: | 262019553995 | Agent Code: | |
| Type: | Real | | |
| Tax Area: | 20 - 127 F8 CD1 | Land Use Code | 19 |
| Open Space: | N | DFL | N |
| Historic Property: | N | Remodel Property: | N |
| Multi-Family Redevelopment: | N | | |
| Township: | 26N | Section: | 19 |
| Range: | 20EWM | Legal Acres: | 21.6200 |
Location |
| Address: | 50 RED HILL RD ARDENVOIR, WA 98822 | Mapsco: | |
| Neighborhood: | Cycle 2 Entiat River south div 1 RES | Map ID: | 2ERVS01R01 |
| Neighborhood CD: | 2ERVS01R01 |
Owner |
| Name: | HARDIN DAVID I & MARY J PERRY-HARDIN | Owner ID: | 92061 |
| Mailing Address: | PO BOX 215 ENTIAT, WA 98822 | % Ownership: | % |
| | | Exemptions: | |
Pay Tax Due
There is currently No Amount Due on this property.
Taxes and Assessment Details
Values
| (+) Improvement Homesite Value: | + | $0 | |
| (+) Improvement Non-Homesite Value: | + | $272,802 | |
| (+) Land Homesite Value: | + | $0 | |
| (+) Land Non-Homesite Value: | + | $62,888 | |
| (+) Curr Use (HS): | + | $0 | $0 |
| (+) Curr Use (NHS): | + | $0 | $0 |
| | | -------------------------- | |
| (=) Market Value: | = | $335,690 | |
| (–) Productivity Loss: | – | $0 | |
| | | -------------------------- | |
| (=) Subtotal: | = | $335,690 | |
| (+) Senior Appraised Value: | + | $0 | |
| (+) Non-Senior Appraised Value: | + | $335,690 | |
| | | -------------------------- | |
| (=) Total Appraised Value: | = | $335,690 | |
| (–) Senior Exemption Loss: | – | $0 | |
| (–) Exemption Loss: | – | $0 | |
| | | -------------------------- | |
| (=) Taxable Value: | = | $335,690 | |
Taxing Jurisdiction
| Owner: | HARDIN DAVID I & MARY J PERRY-HARDIN | | |
| % Ownership: | 100.0000000000% | | |
| Total Value: | $335,690 | | |
| Tax Area: | 20 - 127 F8 CD1 |
| 110001 | County Road General | 1.1100696826 | $335,690 | $335,690 | $372.64 | | |
| 010170 | Chelan County | 1.0308400273 | $335,690 | $335,690 | $346.04 | | |
| 155001 | Veteran's Relief | 0.0112499997 | $335,690 | $335,690 | $3.78 | | |
| 160001 | Mental Health | 0.0250000002 | $335,690 | $335,690 | $8.39 | | |
| 657101 | Cemetery No 1 | 0.0506830187 | $335,690 | $335,690 | $17.01 | | |
| 656801 | Fire No 8 General | 0.8239283691 | $335,690 | $335,690 | $276.58 | | |
| 652003 | State School 2 | 1.0967484031 | $335,690 | $335,690 | $368.17 | | |
| 652005 | State School | 2.0380122406 | $335,690 | $335,690 | $684.14 | | |
| 652025 | State School 2 Refund | 0.0000287381 | $335,690 | $335,690 | $0.01 | | |
| 107001 | Flood Control Zone | 0.0549017061 | $335,690 | $335,690 | $18.43 | | |
| 656810 | Fire No 8 Bond | 0.2806847779 | $335,690 | $335,690 | $94.22 | | |
| 644001 | Regional Library | 0.3693977329 | $335,690 | $335,690 | $124.00 | | |
| 671101 | Port General | 0.2399548335 | $335,690 | $335,690 | $80.55 | | |
| 654081 | Entiat SD 127 General | 1.4178809496 | $335,690 | $335,690 | $475.97 | | |
| 654090 | Entiat SD 127 Bond | 1.3036012619 | $335,690 | $335,690 | $437.61 | | |
| 652001 | State School Refund | 0.0000539242 | $335,690 | $335,690 | $0.02 | | |
| | Total Tax Rate: | 9.8530356655 | | | | | |
| | | | | Taxes w/Current Exemptions: | $3,307.56 | | |
| | | | | Taxes w/o Exemptions: | $3,307.56 | | |
Improvement / Building
| Improvement #1: | RESIDENTIAL | State Code: | 11 | 1612.0 sqft | Value: | $260,130 |
| Exterior Wall: | Plywood or Hrdbrd | Fireplace: | Free Standing | | Heating/Cooling: | Heat Pump | Number of Bathrooms: | 2.5 | | Number of Bedrooms: | 3 |   |   |
|
| | Type | Description | Class CD | Sub Class CD | Year Built | Area |
| | MA | Main | AVERAGE | 1.5 ST FIN | 2013 | 1612.0 |
| | GAR-ATT | Attached Garage | AVERAGE | 1.5 ST FIN | 2013 | 456.0 |
| Improvement #2: | RESIDENTIAL | State Code: | 11 | 0.0 sqft | Value: | $12,672 |
Sketch
Property Image
Land
| 1 | RES 500 | RESIDUAL $500/A | 20.6200 | 898207.20 | 0.00 | 0.00 | 1.00 | $12,888 | $0 |
| 2 | SV 40K | SITE VALUE $40,000 | 1.0000 | 43560.00 | 0.00 | 0.00 | 1.00 | $50,000 | $0 |
Roll Value History
| 2026 | N/A | N/A | N/A | N/A | N/A |
| 2025 | $425,084 | $129,297 | $0 | $554,381 | $554,381 |
| 2024 | $487,256 | $66,409 | $0 | $553,665 | $553,665 |
| 2023 | $460,082 | $66,409 | $0 | $526,491 | $526,491 |
| 2022 | $387,738 | $66,409 | $0 | $454,147 | $454,147 |
| 2021 | $367,164 | $66,409 | $0 | $433,573 | $433,573 |
| 2020 | $272,802 | $62,888 | $0 | $335,690 | $335,690 |
| 2019 | $272,802 | $62,888 | $0 | $335,690 | $335,690 |
| 2018 | $254,238 | $52,322 | $0 | $306,560 | $306,560 |
| 2017 | $217,421 | $51,316 | $0 | $268,737 | $268,737 |
| 2016 | $204,063 | $53,329 | $0 | $257,392 | $257,392 |
| 2015 | $204,063 | $53,329 | $0 | $257,392 | $257,392 |
| 2014 | $169,646 | $52,826 | $0 | $222,472 | $222,472 |
| 2013 | $123,785 | $52,826 | $0 | $176,611 | $176,611 |
| 2012 | $0 | $46,186 | $0 | $46,186 | $46,186 |
| 2011 | $0 | $46,186 | $0 | $46,186 | $46,186 |
| 2010 | $0 | $46,186 | $0 | $46,186 | $46,186 |
| 2009 | $0 | $46,186 | $0 | $46,186 | $46,186 |
| 2008 | $0 | $46,186 | $0 | $46,186 | $46,186 |
| 2007 | $0 | $46,186 | $0 | $46,186 | $46,186 |
Deed and Sales History
| 1 | 11/15/2016 | Q | Quit Claim Deed | PARKER DANIEL G & LORI L | HARDIN DAVID I & MARY J PERRY-HARDIN | | | | 172269 | 2447898 BLA |
| 2 | 11/15/2016 | Q | Quit Claim Deed | HARDIN DAVID I & MARY J PERRY-HARDIN | PARKER DANIEL G & LORI L | | | | 172270 | 2447897 BLA |
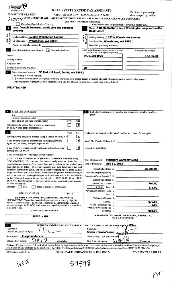
| 3 | 08/02/2013 | SWD | Statutory Warranty Deed | A HOME DOCTOR INC | HARDIN DAVID I & MARY J PERRY-HARDIN | | | $225,361.00 | 159636 | 2387387 |
| 4 | 07/31/2013 | SWD | Statutory Warranty Deed | ANDERSON JOSEPH W | A HOME DOCTOR INC | | | $224,646.00 | 159598 | 2387221 |
| 5 | 05/11/2010 | Q | Quit Claim Deed | ANDERSON PARKER INVESTMENTS | ANDERSON JOSEPH W | | | | 148907 | 2323061 |
| 6 | 04/04/2006 | O | Other | AP INVESTMENTS | PUBLIC | | | | 0 | 2224090 |
| 7 | 09/01/2005 | BARGAIN | Bargain & Sale Deed | | ANDERSON PARKERINVESTMENTS | | | | 0 | 2208256 |
| 8 | 08/17/2004 | O | Other | CHELAN CO SHERI | US BANK NATIONA | | | | 0 | 2181054 |
| 9 | 07/22/2004 | O | Other | | U S BANK NATIONAL ASSOCIATION | | | | 0 | 2178989 |
| 10 | 10/16/1998 | Q | Quit Claim Deed | HORAN ARLENE | HORAN BROS INC | | | | 0 | 2038606 |
| 11 | 10/22/1987 | SWD | Statutory Warranty Deed | | MICHAEL C HORAN | 884 | 1266 | | 0 | |
| 12 | 09/01/2005 | BARGAIN | Bargain & Sale Deed | | | | | $835,000.00 | 12979102 | 2208256 |
| 13 | 10/13/1998 | Q | Quit Claim Deed | | | | | | 9958100 | 2038606 |
Payout Agreement
| No payout information available.. |