Property
Account |
| Property ID: | 31413 | Abbreviated Legal Description: | T 24N R 18EWM S 29 PT OF SESW 1.4700 ACRES |
| Geographic ID: | 241829340350 | Agent Code: | |
| Type: | Real | | |
| Tax Area: | 48 - 228 F6 CD2 H1 | Land Use Code | 11 |
| Open Space: | N | DFL | N |
| Historic Property: | N | Remodel Property: | N |
| Multi-Family Redevelopment: | N | | |
| Township: | 24N | Section: | 29 |
| Range: | 18EWM | Legal Acres: | 1.4700 |
Location |
| Address: | 6760 CAMPBELL RD PESHASTIN, WA 98847 | Mapsco: | |
| Neighborhood: | Cycle 3 Peshastin/Dryden div 4 RES | Map ID: | 3PDRN04R01 |
| Neighborhood CD: | 3PDRN04R01 |
Owner |
| Name: | DODRILL ASHLEY N & RICHARD | Owner ID: | 121553 |
| Mailing Address: | 6760 CAMPBELL RD PESHASTIN, WA 98847 | % Ownership: | % |
| | | Exemptions: | SNR/DSBL |
Pay Tax Due
There is currently No Amount Due on this property.
Taxes and Assessment Details
Values
| (+) Improvement Homesite Value: | + | $174,186 | |
| (+) Improvement Non-Homesite Value: | + | $0 | |
| (+) Land Homesite Value: | + | $62,350 | |
| (+) Land Non-Homesite Value: | + | $0 | |
| (+) Curr Use (HS): | + | $0 | $0 |
| (+) Curr Use (NHS): | + | $0 | $0 |
| | | -------------------------- | |
| (=) Market Value: | = | $236,536 | |
| (–) Productivity Loss: | – | $0 | |
| | | -------------------------- | |
| (=) Subtotal: | = | $236,536 | |
| (+) Senior Appraised Value: | + | $104,459 | |
| (+) Non-Senior Appraised Value: | + | $0 | |
| | | -------------------------- | |
| (=) Total Appraised Value: | = | $104,459 | |
| (–) Senior Exemption Loss: | – | $62,675 | |
| (–) Exemption Loss: | – | $0 | |
| | | -------------------------- | |
| (=) Taxable Value: | = | $41,784 | |
Taxing Jurisdiction
| Owner: | DODRILL ASHLEY N & RICHARD | | |
| % Ownership: | 100.0000000000% | | |
| Total Value: | $236,536 | | |
| Tax Area: | 48 - 228 F6 CD2 H1 |
| 110001 | County Road General | 1.1100696826 | $236,536 | $41,784 | $46.38 | | |
| 010170 | Chelan County | 1.0308400273 | $236,536 | $41,784 | $43.07 | | |
| 155001 | Veteran's Relief | 0.0112499997 | $236,536 | $41,784 | $0.47 | | |
| 160001 | Mental Health | 0.0250000002 | $236,536 | $41,784 | $1.04 | | |
| 657201 | Cemetery No 2 | 0.0627135555 | $236,536 | $41,784 | $2.62 | | |
| 656601 | Fire No 6 General | 0.4223970225 | $236,536 | $41,784 | $17.65 | | |
| 107001 | Flood Control Zone | 0.0549017061 | $236,536 | $41,784 | $2.29 | | |
| 654170 | Cascade SD 228 Bond | 0.0000000000 | $236,536 | $0 | $0.00 | | |
| 654175 | Cascade SD 228 Cap Proj | 0.0000000000 | $236,536 | $0 | $0.00 | | |
| 652001 | State School Refund | 0.0000539242 | $236,536 | $41,784 | $0.00 | | |
| 652003 | State School 2 | 0.0000000000 | $236,536 | $0 | $0.00 | | |
| 652005 | State School | 2.0380122406 | $236,536 | $41,784 | $85.16 | | |
| 652025 | State School 2 Refund | 0.0000000000 | $236,536 | $0 | $0.00 | | |
| 692101 | Hospital No 1 General | 0.1916824022 | $236,536 | $41,784 | $8.01 | | |
| 692110 | Hospital No 1 Bond | 0.0000000000 | $236,536 | $0 | $0.00 | | |
| 692150 | Hospital No 1 EMS | 0.3841374887 | $236,536 | $41,784 | $16.05 | | |
| 644001 | Regional Library | 0.3693977329 | $236,536 | $41,784 | $15.43 | | |
| 671101 | Port General | 0.2399548335 | $236,536 | $41,784 | $10.03 | | |
| 654161 | Cascade SD 228 General | 0.0000000000 | $236,536 | $0 | $0.00 | | |
| | Total Tax Rate: | 5.9404106160 | | | | | |
| | | | | Taxes w/Current Exemptions: | $248.20 | | |
| | | | | Taxes w/o Exemptions: | $2,333.49 | | |
Improvement / Building
| Improvement #1: | RESIDENTIAL | State Code: | 11 | 1680.0 sqft | Value: | $174,186 |
| Exterior Wall: | Plywood or Hrdbrd | Fireplace: | Single 1 Story | | Heating/Cooling: | Baseboard Panel | Number of Bathrooms: | 1.5 | | Number of Bedrooms: | 3 |   |   |
|
| | Type | Description | Class CD | Sub Class CD | Year Built | Area |
| | MA | Main | FAIR | 1 STY | 1982 | 1680.0 |
| | DECK | Open Wood Deck | FAIR | * | 1982 | 72.0 |
Sketch
| No sketches available for this property. |
Property Image
Land
| 1 | RES 5K | RESIDUAL $5000/A | 0.4700 | 20473.20 | 0.00 | 0.00 | 1.00 | $2,350 | $0 |
| 2 | SV 60K | SITE VALUE $60,000 | 1.0000 | 43560.00 | 0.00 | 0.00 | 1.00 | $60,000 | $0 |
Roll Value History
| 2026 | N/A | N/A | N/A | N/A | N/A |
| 2025 | $235,430 | $119,712 | $0 | $355,142 | $355,142 |
| 2024 | $134,763 | $115,971 | $0 | $250,734 | $250,734 |
| 2023 | $167,600 | $115,971 | $0 | $283,571 | $283,571 |
| 2022 | $238,296 | $115,971 | $0 | $354,267 | $354,267 |
| 2021 | $180,079 | $91,655 | $0 | $271,734 | $271,734 |
| 2020 | $148,638 | $88,537 | $0 | $237,175 | $41,784 |
| 2019 | $174,186 | $62,350 | $0 | $236,536 | $41,784 |
| 2018 | $187,975 | $54,245 | $0 | $242,220 | $41,784 |
| 2017 | $162,762 | $54,245 | $0 | $217,007 | $41,784 |
| 2016 | $114,770 | $73,573 | $0 | $188,343 | $41,784 |
| 2015 | $117,603 | $73,573 | $0 | $191,176 | $41,784 |
| 2014 | $148,287 | $73,573 | $0 | $221,860 | $41,784 |
| 2013 | $152,016 | $62,350 | $0 | $214,366 | $41,784 |
| 2012 | $138,367 | $62,350 | $0 | $200,717 | $41,784 |
| 2011 | $110,032 | $65,468 | $0 | $175,500 | $41,784 |
| 2010 | $77,109 | $62,350 | $0 | $139,459 | $41,784 |
| 2009 | $77,109 | $62,350 | $0 | $139,459 | $41,784 |
| 2008 | $77,109 | $62,350 | $0 | $139,459 | $41,784 |
| 2007 | $77,109 | $27,350 | $0 | $104,459 | $41,032 |
Deed and Sales History
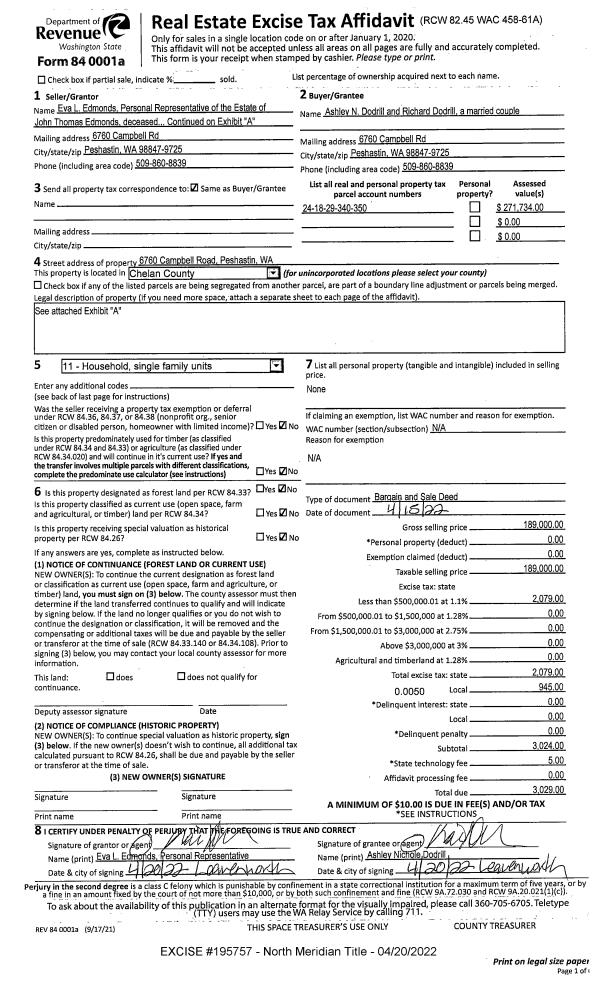
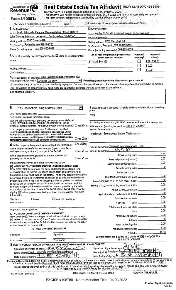
| 1 | 04/20/2022 | PR | Personal Representatives Deed | EDMONDS JOHN T | DODRILL ASHLEY N & RICHARD | | | $0.00 | 195758 | 2565851 |
| 2 | 04/20/2022 | BARGAIN | Bargain & Sale Deed | EDMONDS JOHN T | DODRILL ASHLEY N & RICHARD | | | $189,000.00 | 195757 | 2565850 |
| 3 | | SWD | Statutory Warranty Deed | | EDMONDS JOHN T | 847 | 1201 | | 0 | |
Payout Agreement
| No payout information available.. |